洛陽千島裝飾微信客服
掃描洛陽千島裝飾公司二維碼添加好友可贈送免費驗房服務、免費出方案
來源:http://www.bs78p.cn ?? 發布時間:2016-11-21 ?? 作者:洛陽千島裝飾公司
如何看設計圖紙
看設計圖紙時,業主應把握好以下幾個環節。
(1)看圖紙是否齊全,是否包括了所有的平面、頂面、地面、各個墻面(沒有裝飾的墻面除外)、櫥柜、重要設計的節點、電源等,是否同時提供了開關圖、照明電路圖、系統圖、弱電圖等。
(2)看布局是否合理,重點觀察客廳、餐廳、各房間、廚衛、陽臺等。另外,玄關是否出彩,客廳、餐廳吊頂和立面裝飾是否和諧,整體風格是否協調,建筑符號是否一致等都要注意。家庭裝修重要的就是實用性。
(3)看設計的文化底蘊是否深厚。這是一個仁者見仁、智者見智的問題,業主主要得根據自己的偏好和感受來判斷。

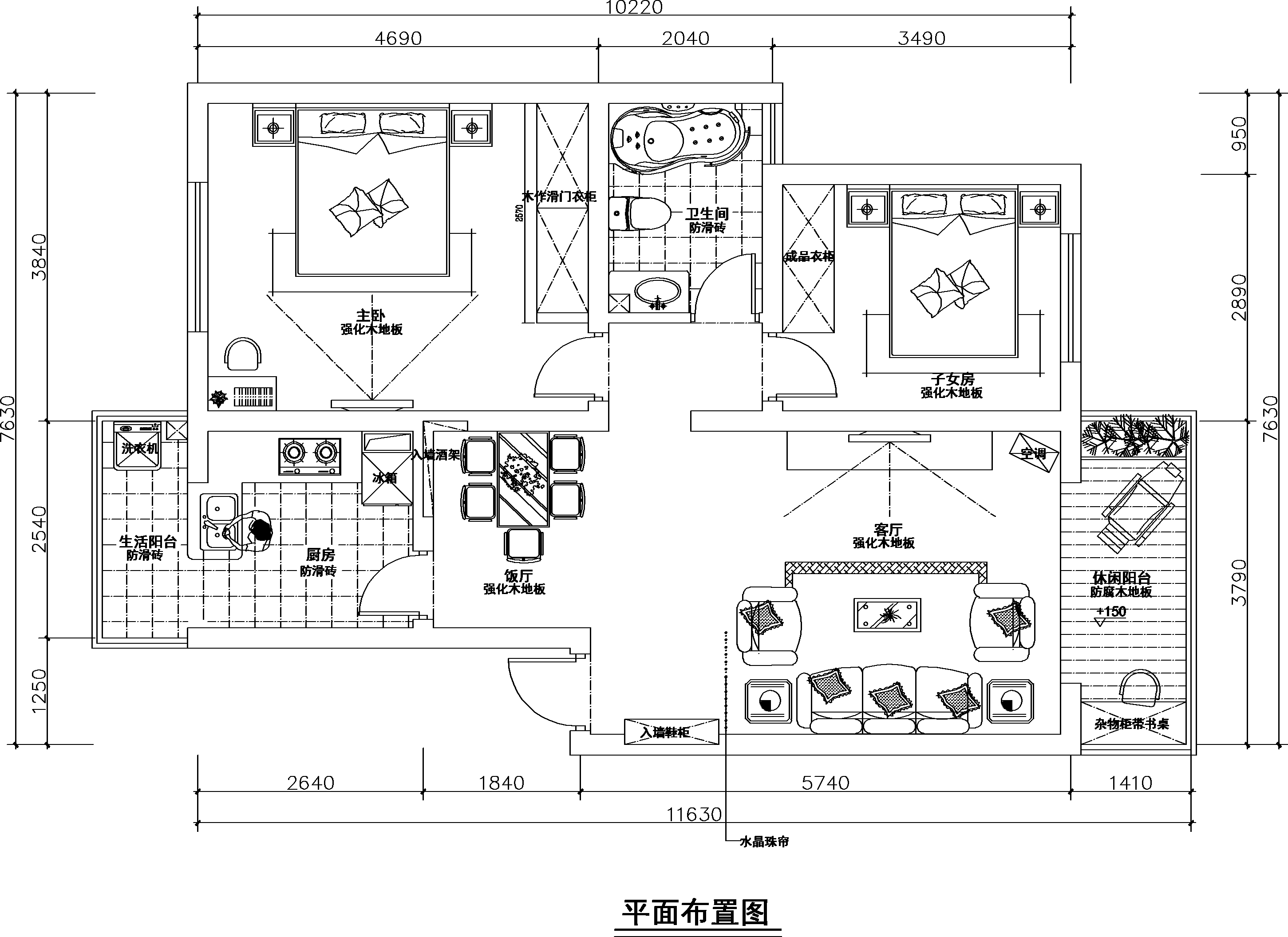
如何看建筑平面圖
建筑平面圖是業主了解住宅平面形狀、方位、朝向以及住宅內部房間、樓梯、走道、門窗、固定設備的空間位置的重要依據。不少業主在購買房子時往往出現這種情況:欲購買的住房還沒有竣工,只得依據住宅的平面圖以及立面圖、剖面圖、透視圖、表現圖和住宅模型來了解住宅的基本情況。因此,學會看建筑平面圖還是很有必要的。
建筑平面圖是按一定比例繪制的建筑的水平剖面圖。住宅的建筑平面圖一般比較詳細,通常采用較大的比例,如1∶100或1∶50,并會標出實際的詳細尺寸。不過,有的小比例住宅平面圖并不用專門的符號標出內部附置設備,這種圖是供設計建設施工人員使用的。
一些房地產公司為了使業主更全面地了解住宅的基本情況,往往會在建筑平面圖上描繪室內應配置家具的尺寸和空間位置,有的還用顏色加以區分。通常情況下,在建筑平面圖上,并不會標明窗的開啟方式以及水、暖、燃氣立管的位置。
如何審查設計圖紙
審查設計圖紙時,業主應注意以下幾方面事項。
(1)看圖紙比例是否合理。很多業主喜歡看設計圖紙,卻忽視了施工圖。其實,設計圖紙上雖然有漂亮的造型,但現場施工完以后,效果往往與設計圖紙相差甚遠。其根本原因就是設計師沒有按照施工圖紙來做設計圖紙,而是一味追求圖紙的美觀。因此,設計圖紙必須按照嚴格的比例來制作,真實展示裝修效果。
(2)看詳細尺寸是否精確。一些設計師去了施工現場以后,測量并不認真,導致其測量的尺寸與實際尺寸有誤差。如果一些關鍵尺寸量得不夠精確,在施工時就會出現比較麻煩的問題。
(3)看材料信息是否明確。大部分業主都很關注裝修公司的報價單,擔心上當受騙,往往會一項一項地仔細檢查,其實,在設計圖紙上也應標出主要材料的名稱及品牌,這對于施工人員照圖紙施工很有幫助。
(4)看是否標注了制作工藝。在設計圖紙中標注必要的制作工藝,一方面便于施工,另一方面也能起到約束施工人員的作用,更好地保證工程質量。
裝修完工后,所有的設計圖紙都必須完整留存。一旦水電工程出了問題,或是想重新改裝,都需要設計圖紙作參考依據。